Dokumentation: Ferienhaus Neuhus - 1961 - Franz Brühwiler

CHF 34.00

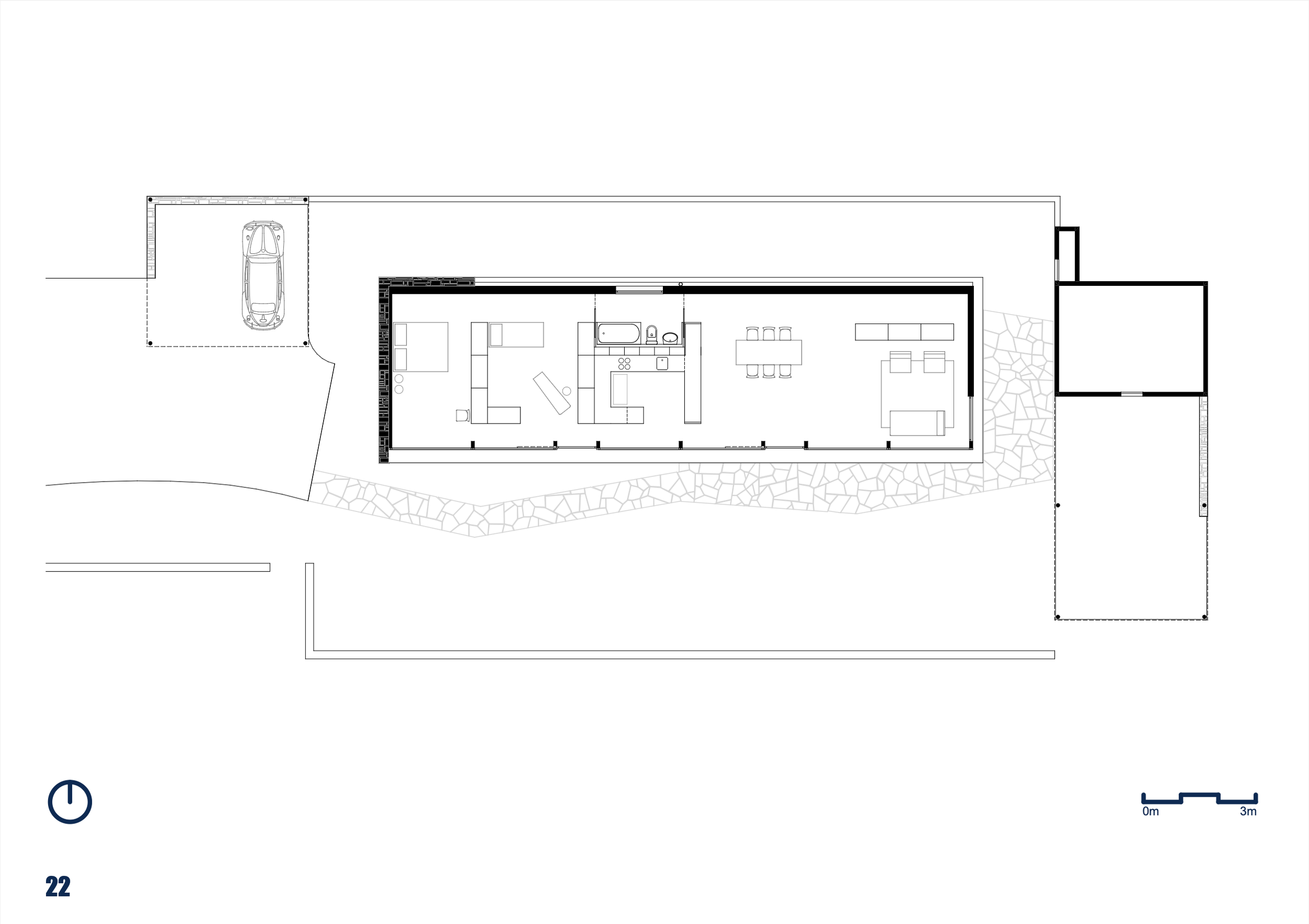
Anfang der 1960er-Jahre entwarf der Architekt Franz Brühwiler in Walchwil ein Ferienhaus für sich und seine Familie – auf einem Hanggrundstück mit spektakulärem Blick auf den Zugersee und die Rigi. Was als bescheidener Rückzugsort begann, entwickelte sich in drei Bauetappen zu einem raffiniert komponierten Wohnensemble.

Diese Publikation erzählt die Geschichte eines Bauwerks, das weit mehr ist als ein privates Refugium: ein Zeugnis experimenteller Schweizer Wohnkultur der Nachkriegszeit – und ein Meisterstück der subtilen Verbindung von Landschaft, Architektur und Lebensentwurf.

Anfang der 1960er-Jahre entwarf der Architekt Franz Brühwiler in Walchwil ein Ferienhaus für sich und seine Familie – auf einem Hanggrundstück mit spektakulärem Blick auf den Zugersee und die Rigi. Was als bescheidener Rückzugsort begann, entwickelte sich in drei Bauetappen zu einem raffiniert komponierten Wohnensemble.

Diese Publikation erzählt die Geschichte eines Bauwerks, das weit mehr ist als ein privates Refugium: ein Zeugnis experimenteller Schweizer Wohnkultur der Nachkriegszeit – und ein Meisterstück der subtilen Verbindung von Landschaft, Architektur und Lebensentwurf.