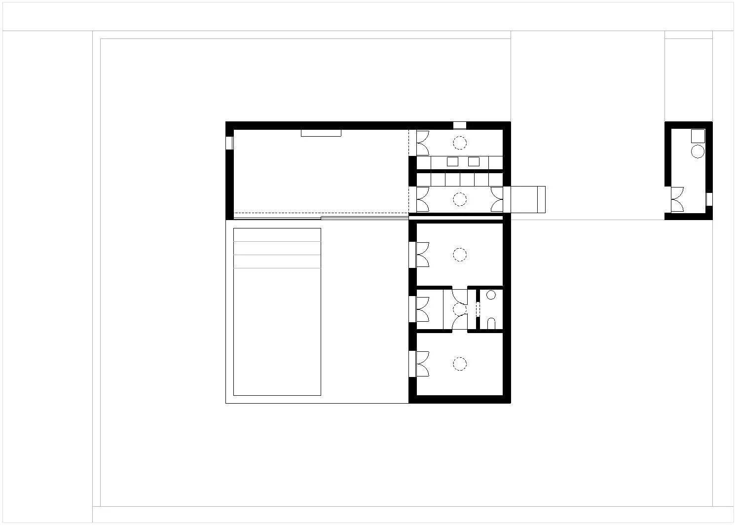
AVOLA HAUS - SIZILIEN Konzeptstudie2023 28. Aug. Verfasst von Florian Bucher Im Vollbildmodus anzeigen Im Vollbildmodus anzeigen Im Vollbildmodus anzeigen Im Vollbildmodus anzeigen Im Vollbildmodus anzeigen 2023 Florian Bucher
AVOLA HAUS - SIZILIEN Konzeptstudie2023 28. Aug. Verfasst von Florian Bucher Im Vollbildmodus anzeigen Im Vollbildmodus anzeigen Im Vollbildmodus anzeigen Im Vollbildmodus anzeigen Im Vollbildmodus anzeigen 2023 Florian Bucher