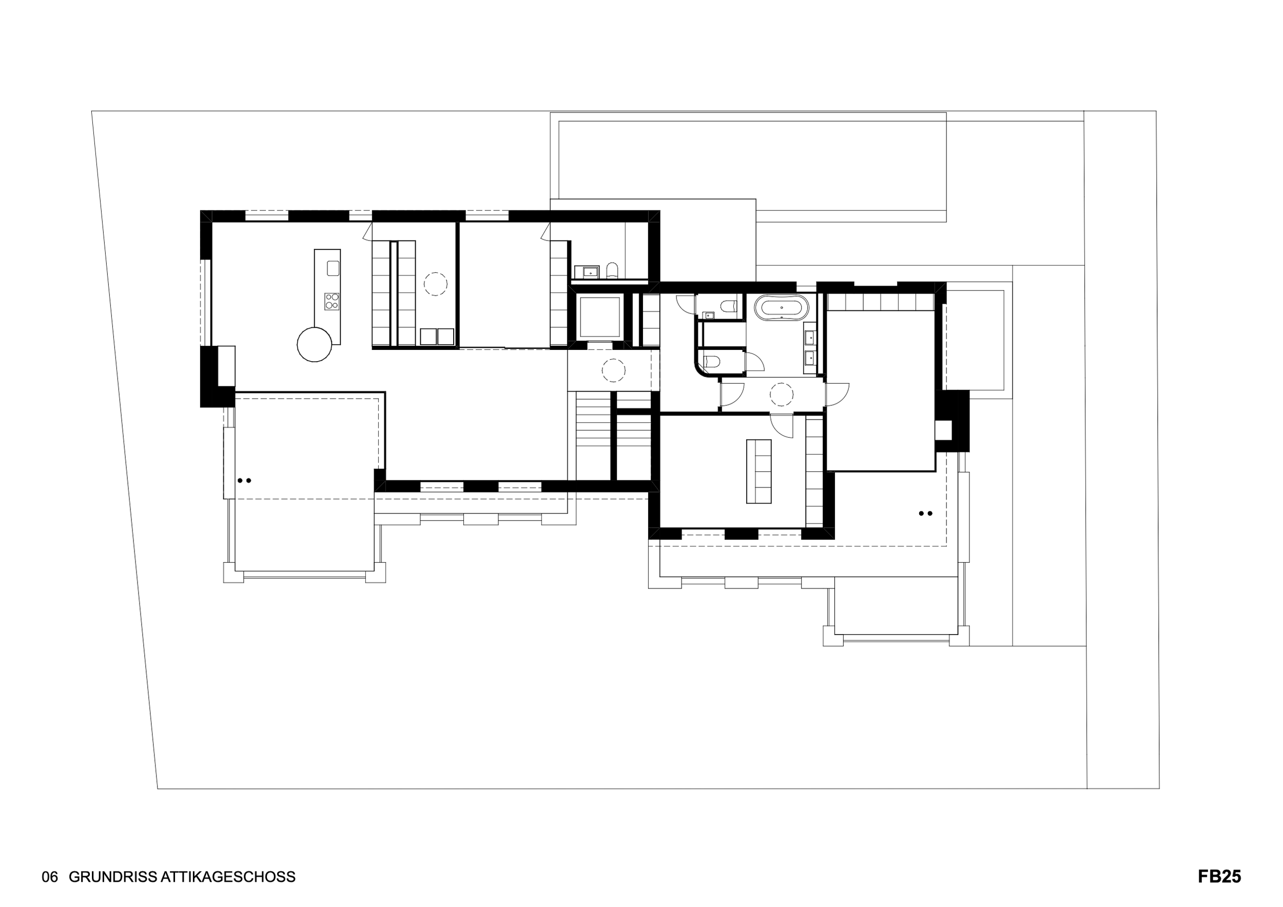
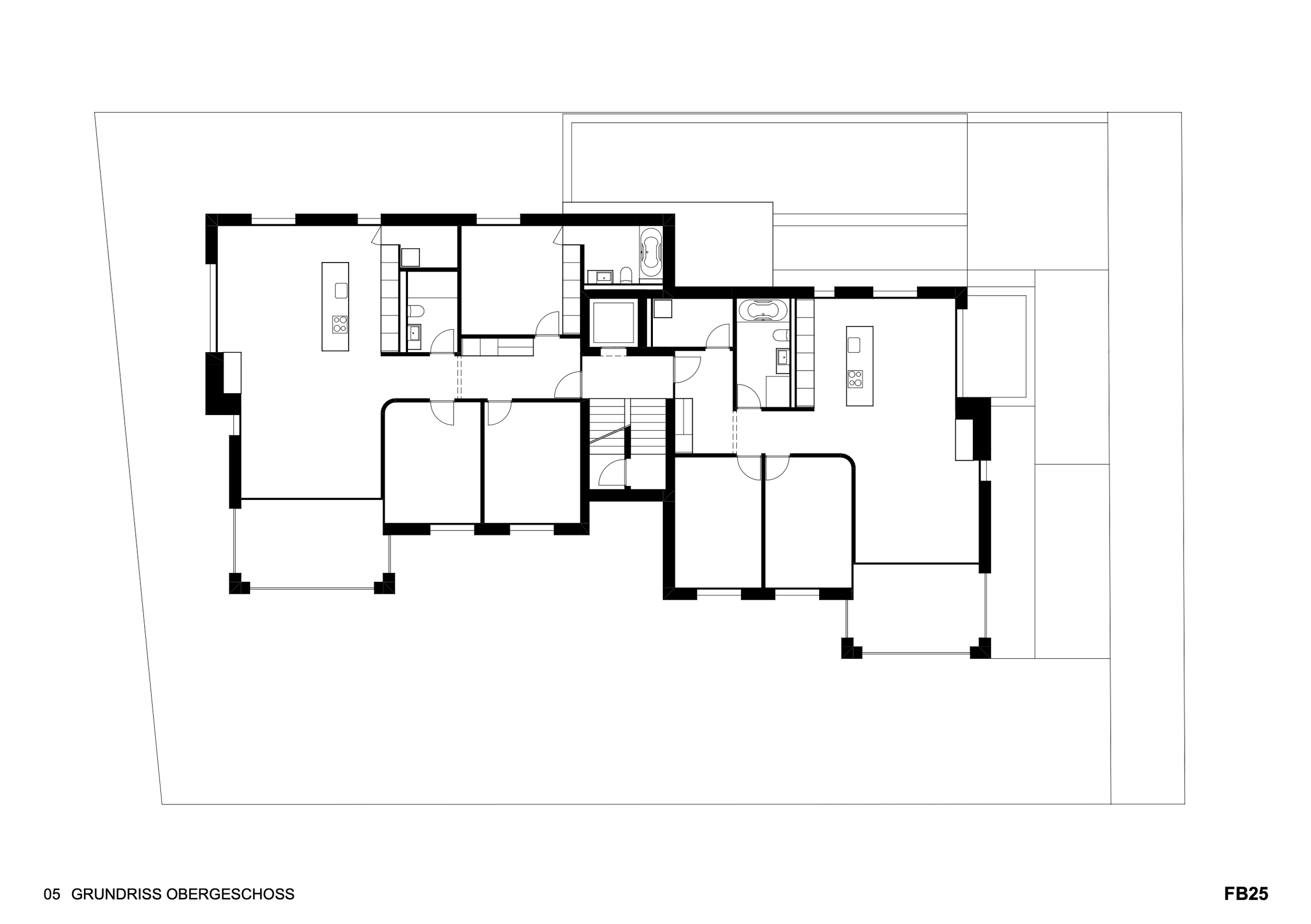
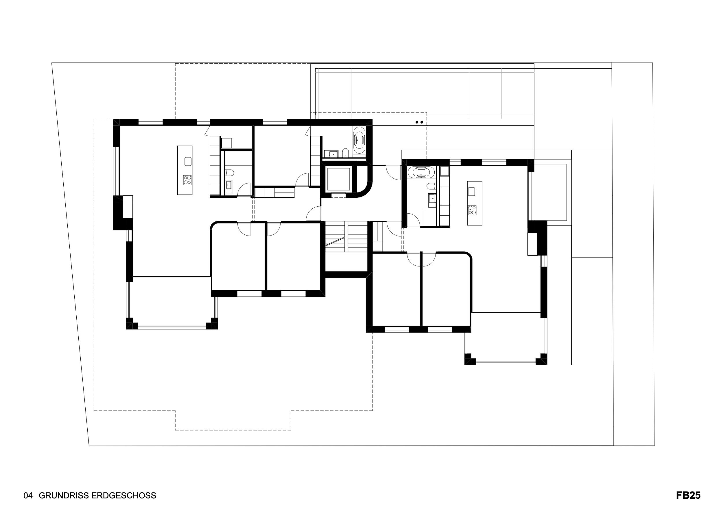
MEHRFAMILIENHAUS - STANS Studienauftrag2025 30. Dez. Verfasst von Florian Bucher Neubau Mehrfamilienhaus mit 5 Wohnungen in Stans Im Vollbildmodus anzeigen Im Vollbildmodus anzeigen Im Vollbildmodus anzeigen Im Vollbildmodus anzeigen Im Vollbildmodus anzeigen Im Vollbildmodus anzeigen Im Vollbildmodus anzeigen Im Vollbildmodus anzeigen 2025 Florian Bucher
MEHRFAMILIENHAUS - STANS Studienauftrag2025 30. Dez. Verfasst von Florian Bucher Neubau Mehrfamilienhaus mit 5 Wohnungen in Stans Im Vollbildmodus anzeigen Im Vollbildmodus anzeigen Im Vollbildmodus anzeigen Im Vollbildmodus anzeigen Im Vollbildmodus anzeigen Im Vollbildmodus anzeigen Im Vollbildmodus anzeigen Im Vollbildmodus anzeigen 2025 Florian Bucher