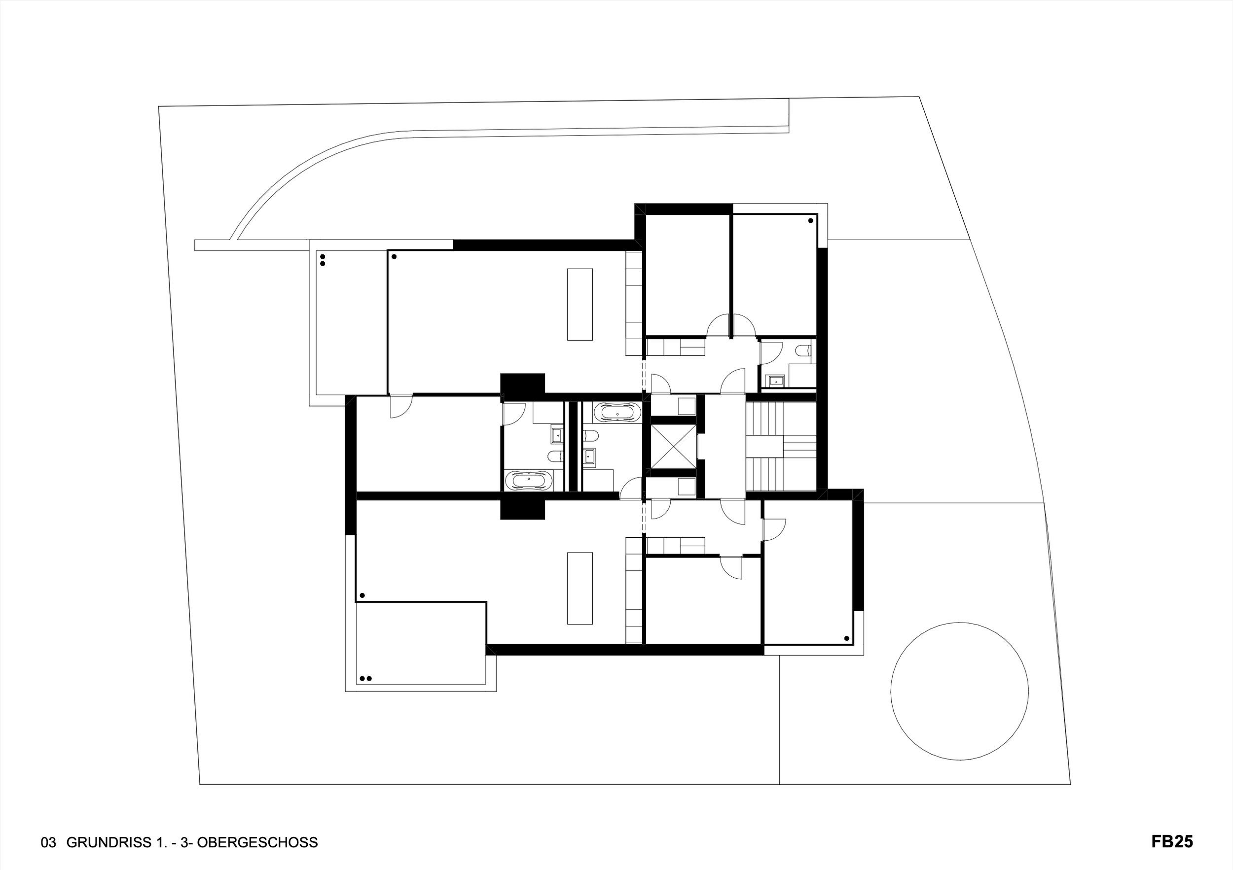
MEHRFAMILIENHAUS - BUOCHS Studienauftrag2025 14. Sept. Verfasst von Florian Bucher Neubau Mehrfamilienhaus mit sechs Wohnungen in Buochs Im Vollbildmodus anzeigen Im Vollbildmodus anzeigen Im Vollbildmodus anzeigen Im Vollbildmodus anzeigen Im Vollbildmodus anzeigen Im Vollbildmodus anzeigen 2025 Florian Bucher
MEHRFAMILIENHAUS - BUOCHS Studienauftrag2025 14. Sept. Verfasst von Florian Bucher Neubau Mehrfamilienhaus mit sechs Wohnungen in Buochs Im Vollbildmodus anzeigen Im Vollbildmodus anzeigen Im Vollbildmodus anzeigen Im Vollbildmodus anzeigen Im Vollbildmodus anzeigen Im Vollbildmodus anzeigen 2025 Florian Bucher